Gargždų turgus – centro kvartalas su kiemu
Gargždų centre siekiame formuoti gyvybingą istorinio miesto centro charakterį su jaukiomis gatvelėmis, prekyba pirmuose aukštuose, viešosiomis erdvėmis ir žmogiško mastelio kvartalais.
Turgaus architektūriniame konkurse laimėjome antrą vietą su projektu „Kiemas“, kuriame pasiūlėme kurti turgaus kvartalą. Turgus susideda iš kelių tūrių – halės ir prekybinių paviljonų aplink vidinį kiemą. Halės tūris kuria jaukią aikštės erdvę, o suskaidymas formuoja patrauklų patekimą į kiemą. Dideli pirmo aukšto halės langai ir įėjimai kviečia užeiti. Kiemas yra prieinamas iš visų teritorijos pusių. Šis turgaus kvartalas formuoja gatveles – jungtis tarp miesto centro ir pietinių rajonų.
Projekte „Kiemas“ turgaus forma – halės tūris ir prekyvietės su vidiniu kiemu sukuria atskirą centro kvartalą. Turgus susideda iš kelių tūrių – halės ir prekybinių paviljonų aplink vidinį kiemą. Aukštesnis halės tūris formuoja jaukią aikštės erdvę, dideli pirmo aukšto langai ir įėjimai kviečia užeiti. Šviesus ir lengvas halės tūris suskaidytas, tad taip sukuriamas patrauklus patekimas į kiemą, kuris dėl kelių įėjimų yra matomas ir prieinamas iš visų teritorijos pusių.
Turgaus aikštėje numatytos vietos šventinei prekybai, laisvalaikiui ir renginiams: mažoji architektūra skatina susitikti ir bendrauti, erdvė pritaikyta kultūrinei ir šeimų veiklai. Aikštėje ir kiemelyje numatyti nauji želdiniai sukuria jaukų mikroklimatą ir mastelį, džiuginančią aplinką. Tarp želdinių yra vietos meno kūriniams ir miestiečių kūrybinei išraiškai. Naujas turgus sukuria impulsą Gargždų centro atsinaujinimui.
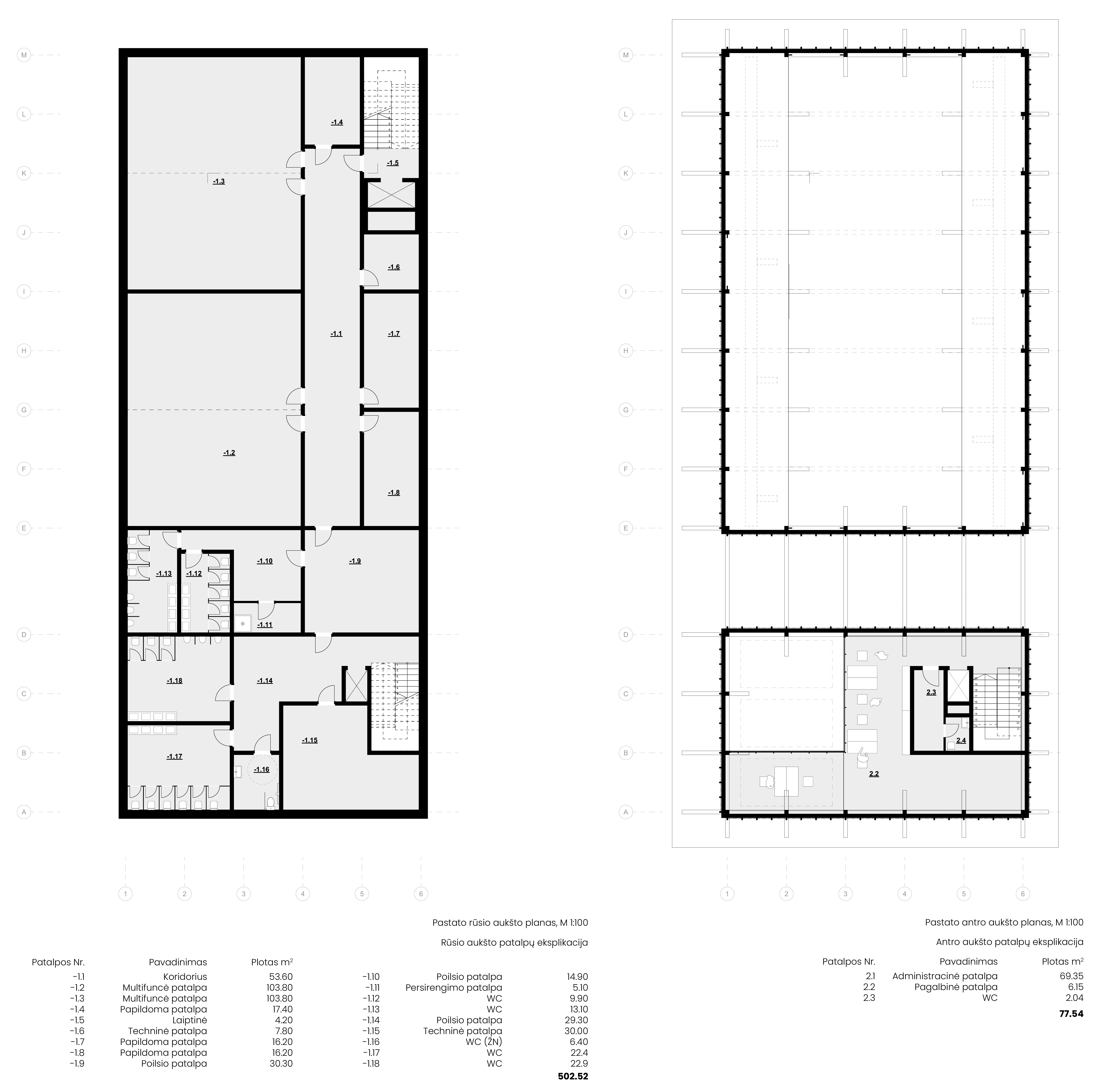
Turguje racionaliai organizuojama programa – erdvi šildoma halė, įvairaus dydžio prekyvietės su atskirais įėjimais, lauko prekybos stoginės, uždaromi prekybiniai paviljonai, administracinės ir techninės patalpos, mišri funkcija rūsyje. Turgus yra patrauklus ekonomiškai: čia gali prekiauti smulkūs ir vidutiniai verslai, ūkininkai, skirtingos prekybinės patalpos gali veikti nepriklausomai viena nuo kitos, tad turgus veikia visos savaitės metu, ryte ir vakare.
Užsakovas: Klaipėdos rajono savivaldybė
Vieta: Gargždai
Sklypo plotas: 3850 kv.m.
Turgaus patalpų plotas: 1030 kv.m.
Metai: 2026
Apdovanojimas: Antra vieta turgaus pastato architektūriniame konkurse
Komanda: Tadas Jonauskis, Justina Muliuolytė, Gytis Aglinskas, Rokas Jonušas, Aurėja Adomavičiūtė, Aistė Pakamorytė, Laura Norkūnaitė, Lukas Kulikauskas
Vizualizacijos: Visual Phenomena Studies
Kitas projektas: Pažintinis tvarumo parkas Tauragėje buvusiame hipodrome